Living Quarter Gooseneck

Living Quarter 6' 9" Wide Gooseneck

Whether you trail ride, rodeo, or show livestock, Sundowner strives to make your living quarters a home away from home that greets you with comfort when returning from a long day. From affordable, lightweight convenience packages, to small weekenders, to mid-sized living quarters, all the way up to the pinnacle of fine living with a multiple slide-out model, Sundowner offers something for everyone. Every living quarters is carefully crafted with the same attention to detail and quality that you deserve and expect. Sundowner is one of the very few trailer manufacturers that produces both trailers and living quarters within the same company plus at the very same facility — which gives owners and dealers one point of contact for service and warranty.

Product Sheet LinkDownload the Product Sheet

Trailer Standard Features
Coupler Adjustable Gooseneck, 2 5/16" Hitch
Width 6' 9"
Height 7'
Load Type Slant
Number of Horses 2 -10 horse
Construction All aluminum
Floor All aluminum with I-beam crossmembers
Wall Tube frame wall with integrated roof rail
Roof Aluminum
Exterior Prepainted aluminum skin top half, extruded aluminum sides lower half
(Full aluminum skin exterior on Santa Fe models)
Axles/Brakes Rubber torsion axles
All wheel electric brakes
Wheels Aluminum wheels
Tires Radial tires
Safety Lights LED clearance and tail lights
Spare Spare tire
Jack Drop leg jack
Horse Area Standard Features
Dividers Air flow divider(s) with pads
Floor Mats In horse area
Feed Doors Drop down feed door with sliding window per stall
Air Gaps 2 Air gaps with Plexiglas on rump side
Kick panel SunCoated kick panels on rump wall
Rear Door Double rear doors
Vent Pop-up vent per horse stall
Interior Light Dome light in horse area
Tie Ring 1 Outside and 2 inside tie rings per stall
Rear tack Collapsible rear tack with saddle rack, tack hooks and light
Living Quarters Standard Features
  • 15,000 BTU air conditioner with heat strip & Thermostat
  • 3 cu. ft. gas/electric or 8 cu. ft. 12V refrigerator (per plan)
  • Microwave
  • Formica counter tops
  • Single bowl kitchen sink
  • Swivel TV antenna
  • AM/FM radio CD/DVD player
  • Day/night shades
  • Mattress
  • Quilt
  • Wardrobe and linen closet (per plan)
  • Ceiling puck lights
  • Retractable shower door
  • Towel rack ring and toilet paper holder
  • Toilet
  • Shower
  • Vent in bathroom
  • USB Ports
  • Grab handle
  • Furnace with (2) 20lb tanks
  • 12 volt demand water pump
  • City water hook up
  • 31 gallon black water tank
  • 31 gallon gray water tank
  • Sewer dump hose and storage compartment
  • 6 gallon LP elec/gas water heater with automatic recovery
  • Water drains and water heater bypass for easy winterizing
  • Heavy duty 65 amp 12 volt power converter battery charger
  • 30 amp marine style 30ft power cord lifeline
  • 12 volt charge line to truck
  • 12 volt battery disconnect switch
  • Deep cycle battery
  • 120v kitchen and bathroom receptacles, GFI protected
  • LP gas leak detector
  • Emergency exit windows
  • Smoke alarm and fire extinguisher
Popular Options
  • Skin colors: white, black, silver, charcoal, champagne
  • Rumpside window package per model*
  • Additional dome lights
  • Load lights
  • Aluminum face guard
  • Rear ramp
  • Hydraulic jack
  • Awning
  • Hayrack
*Includes a window per stall on rump side, window in load side rear door, side access door, and SunCoat® on the headside.

Example Floorplans

(Click for Larger View)

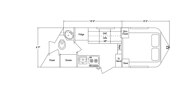
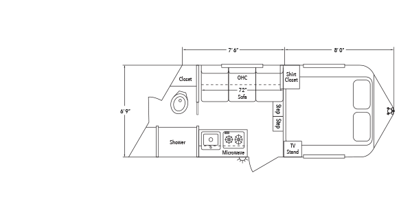
Sundowner Living Quarter 6905 Trailer Floorplan
6905
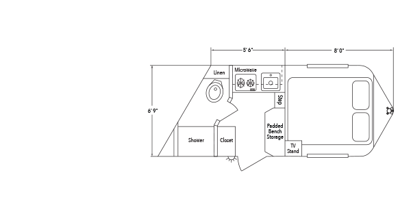
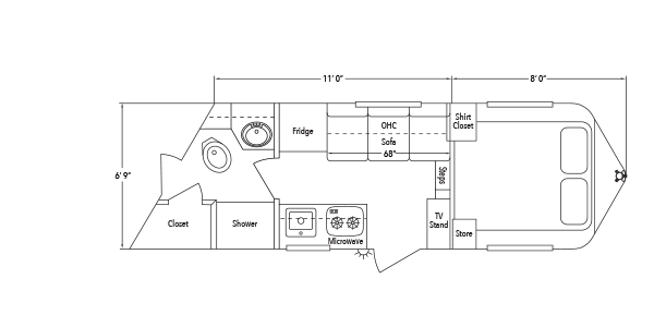
Sundowner Living Quarter 6906 Trailer Floorplan
6906
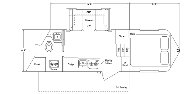
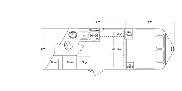
Sundowner Living Quarter 6907 Trailer Floorplan
6907
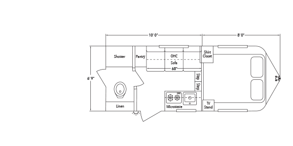
Sundowner Living Quarter 6907 Straight Wall Trailer Floorplan
6907 Straight Wall
Sundowner Living Quarter 6908 Trailer Floorplan
6908
Sundowner Living Quarter 6908 Straight Wall Trailer Floorplan
6908 Straight Wall
Sundowner Living Quarter 6909 Trailer Floorplan
6909
Sundowner Living Quarter 6910 Trailer Floorplan
6910
Sundowner Living Quarter 6910 Straight Wall Trailer Floorplan
6910 Straight Wall
Sundowner Living Quarter 6911 Trailer Floorplan
6911
Sundowner Living Quarter 6911 Straight Wall Trailer Floorplan
6911 Straight Wall
Sundowner Living Quarter 6912 Slide Out Trailer Floorplan
6912 Slide Out

*All dimensions are approximate. Photos may show options. Due to constant product improvements, specifications, component parts, standard and optional equipment are subject to change without notice or obligation. See your dealer for warranty details.