Trailblazer Toy Box Bumper Pull

TrailBlazer Toy Box Bumper Pull

Sundowner Trailers has answered the demand for a well-built, towable bumper pull Toy Box with the exciting TrailBlazer. The TrailBlazer Toy Box series is perfectly sized, highly functional and comfortably priced. The TrailBlazer Bumper Pull Toy Box features an all-aluminum frame and chassis, an aluminum roof, a lower profile for easier towing and handling, easier access with a lower step in height, maximum storage, torsion axles for improved ride and more.

Product Sheet LinkDownload the Product Sheet

Trailer Standard Features
Coupler Bumper Pull, 2 5/16" Hitch
Width 6' 9" or 8'6"
Height 1986 & 2069 -7' • 2286 - 7'6"
Construction All aluminum
Floor Tubular frame
Wall Tube frame wall with integrated roof rail
Roof Aluminum
Exterior Prepainted aluminum skin
Door Exterior access door
Ramp Rear ramp
Axles/Brakes Rubber torsion axles
All wheel electric brakes
Wheels Aluminum wheels
Tires Nitrogen filled radial tires
Safety Lights LED clearance and tail lights
Spoiler Rear spoiler
Jack Electric jack
Living Quarters Standard Features
  • 15,000 BTU air conditioner with heat strip & Thermostat
  • 8 cu. ft. 12V refrigerator
  • Microwave
  • Formica counter tops
  • Single bowl kitchen sink
  • Swivel TV antenna
  • AM/FM radio CD/DVD player with inside & outside speakers
  • Day/night shades
  • Flat screen TV w/ swivel mount
  • Wardrobe and linen closet
  • Ceiling puck lights
  • Retractable shower door
  • Towel rack ring and toilet paper holder
  • Toilet
  • Shower
  • Skylight dome above shower
  • Power roof vent in bathroom
  • Vessel sink w/ waterfall faucet
  • USB Ports
  • Pocket door to bathroom
  • Lighted electric awning
  • Grab handle
  • Park cable hook up
  • Pre-framed and wired for HappiJack bed in the 2286 Toy Box
  • Furnace with (1) 20lb tank
  • 12 volt demand water pump
  • City water hook up
  • 31 gallon black water tank
  • 31 gallon gray water tank
  • Sewer dump hose and storage compartment
  • 6 gallon LP elec/gas water heater with automatic recovery
  • Water drains and water heater bypass for easy winterizing
  • Heavy duty 65 amp 12 volt power converter battery charger
  • 30 amp marine style 30ft power cord lifeline
  • 12 volt charge line to truck
  • 12 volt battery disconnect switch
  • (1) Deep cycle battery
  • 100 watt solar panel on roof
  • Outside 110v outlet
  • 120v kitchen and bathroom receptacles, GFI protected
  • LP gas leak detector
  • Emergency exit windows
  • Smoke alarm and fire extinguisher
Popular Options
  • Skin colors: white, black, silver, charcoal, champagne
  • Paint out package
  • HappiJack Bed

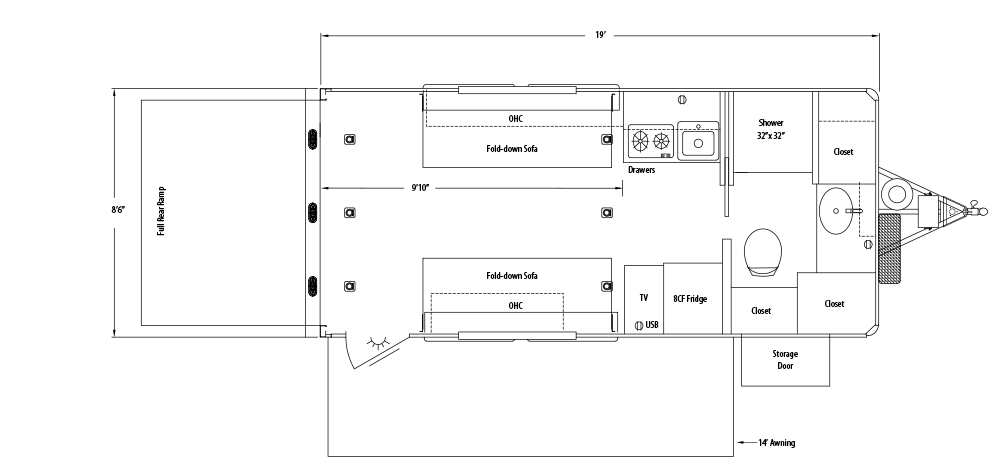
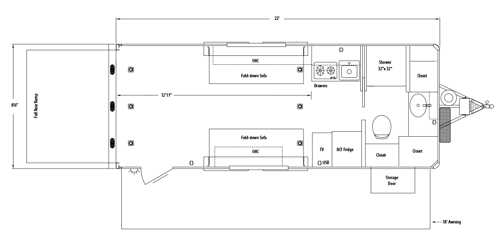
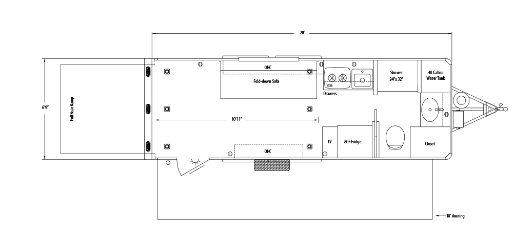
Floorplans

(Click for Larger View)

Sundowner TrailBlazer Toy Box Bumper Pull Trailer Floorplan Sundowner TrailBlazer Toy Box Bumper Pull Trailer Floorplan Sundowner TrailBlazer Toy Box Bumper Pull Trailer Floorplan

*All dimensions are approximate. Photos may show options. Due to constant product improvements, specifications, component parts, standard and optional equipment are subject to change without notice or obligation. See your dealer for warranty details.