Living Quarter Gooseneck

Living Quarter 8' Wide Gooseneck

Whether you trail ride, rodeo, or show livestock, Sundowner strives to make your living quarters a home away from home that greets you with comfort when returning from a long day. From affordable, lightweight convenience packages, to small weekenders, to mid-sized living quarters, all the way up to the pinnacle of fine living with a multiple slide-out model, Sundowner offers something for everyone. Every living quarters is carefully crafted with the same attention to detail and quality that you deserve and expect. Sundowner is one of the very few trailer manufacturers that produces both trailers and living quarters within the same company plus at the very same facility — which gives owners and dealers one point of contact for service and warranty.

Product Sheet LinkDownload the Product Sheet

Trailer Standard Features
Coupler Adjustable Gooseneck, 2 5/16" Hitch
Width 8'
Height 7' 6"
Load Type Slant
Number of Horses 2 -8 horse
Construction All aluminum
Floor All aluminum with I-beam crossmembers
Wall Tube frame wall with integrated roof rail
Roof Aluminum
Exterior Prepainted aluminum skin top half, extruded aluminum sides lower half
Axles/Brakes Rubber torsion axles
4 Wheel electric brakes with safety breakaway
Wheels Aluminum wheels
Tires Radial tires
Bumper Full width rear rubber bumper
Safety Lights LED clearance and 4 tail lights with switch for operating lights while parked
Landing Gear Drop leg jack (Hydraulic Jack 11' & larger models)
Spare Spare tire and aluminum wheel
Battery Double battery box with 2 batteries on 11' and larger models
Horse Area Standard Features
Dividers Air flow divider(s) with pads
Floor Mats In horse area
Feed Doors Drop down feed doors with sliding window per stall behind first
Horse Doors First stall access door with cam latch and black latch
Mangers Feed mangers with access doors for all stalls behind the first
Plexiglas Two air gaps with Plexiglas on rump side
SunCoat SunCoated 48" high in entire horse area
Rear Door Double rear doors with Plexiglas on load side and solid rear tack door
Vent Pop-up vent per horse stall
Interior Light Dome light in horse area
Tie Ring 1 Outside and 2 inside tie rings per stall
Rear Divider Telescoping rear divider
Rear Tack Collapsible rear tack with saddle rack, tack hooks and light
Tack Room Door Tack room door with window and fold down step
Interior Door Center access door from horse area to living quarter
Exterior Light Porch Light
Living Quarters Standard Features
  • 15,000 BTU air conditioner with heat strip & Thermostat
  • 3 cu. ft. gas/electric or 8 cu. ft. 12V refrigerator
  • Microwave
  • Formica counter tops
  • Single bowl kitchen sink
  • Swivel TV antenna
  • AM/FM radio CD/DVD player with inside & outside speakers
  • Day/night shades
  • Mattress
  • Quilt
  • Wardrobe and linen closet (per plan)
  • Ceiling puck lights
  • Retractable shower door
  • Towel rack ring and toilet paper holder
  • Toilet
  • Shower
  • Vent in bathroom
  • USB Ports
  • Grab handle
  • Furnace with (2) 20lb tanks
  • 12 volt demand water pump
  • City water hook up
  • 31 gallon black water tank
  • 31 gallon gray water tank
  • Sewer dump hose and storage compartment
  • 6 gallon LP elec/gas water heater with automatic recovery
  • Water drains and water heater bypass for easy winterizing
  • Heavy duty 65 amp 12 volt power converter battery charger
  • 30 amp marine style 30ft power cord lifeline
  • 12 volt charge line to truck
  • 12 volt battery disconnect switch
  • (2) Deep cycle batteries
  • 120v kitchen and bathroom receptacles, GFI protected
  • LP gas leak detector
  • Emergency exit windows
  • Smoke alarm and fire extinguisher
Popular Options
  • Skin colors: white, black, silver, charcoal, champagne
  • Additional dome lights
  • Load lights
  • Aluminum face guard
  • Rear ramp
  • Awning
  • Hayrack
  • Round Shower
  • Pocket door to bathroom
  • Skylight dome in shower
  • Stainless nose wrap
  • Weld on hinge package
  • Rumpside window package per model
    (window per stall on rump side and a window in the load side rear door)
*Includes a window per stall on rump side, window in load side rear door, side access door, and SunCoat® on the headside.

Floorplans

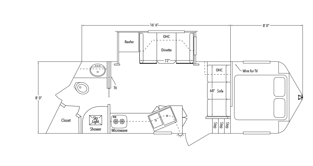
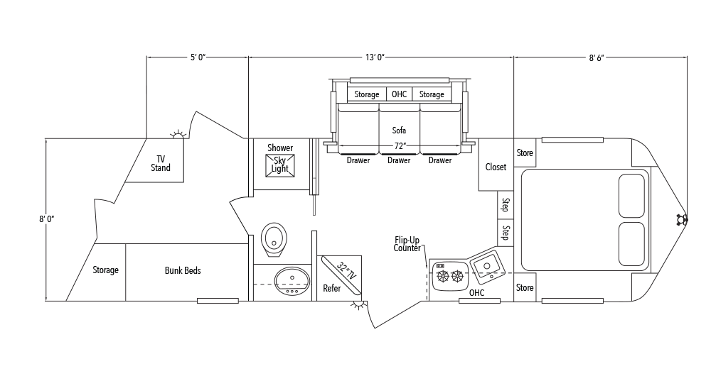
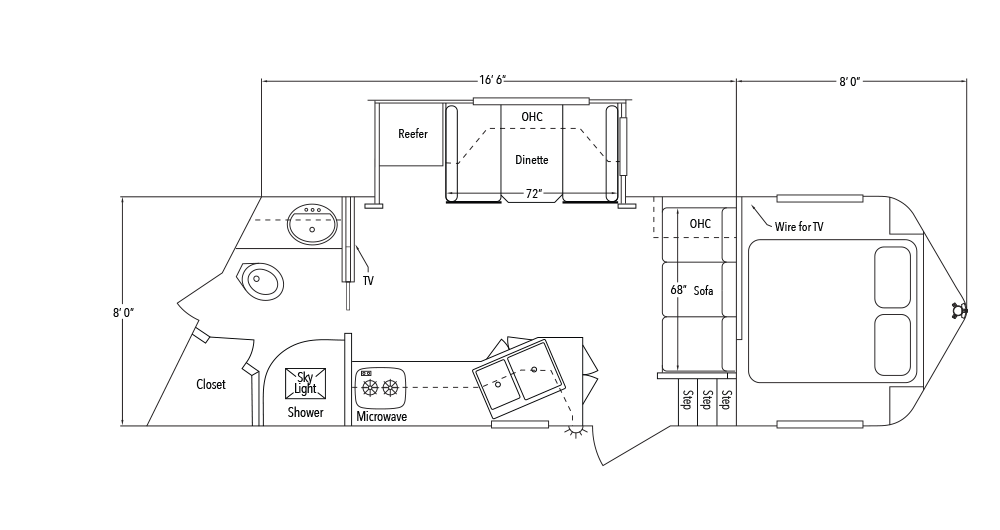
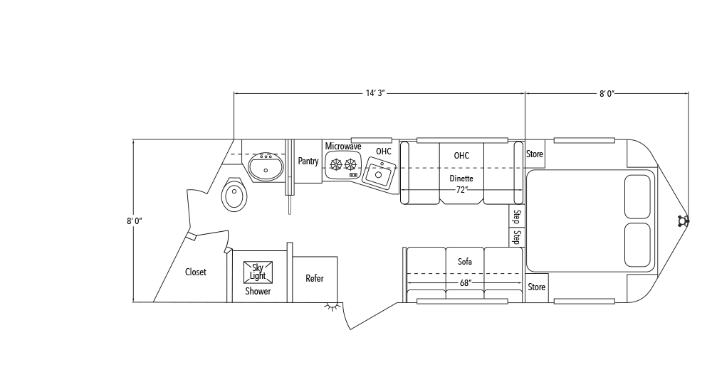
(Click for Larger View)

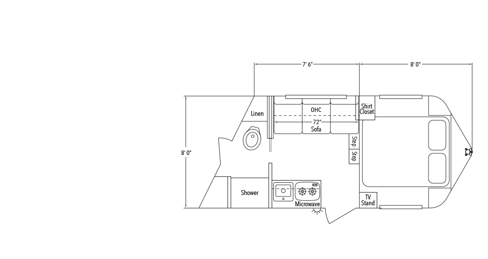
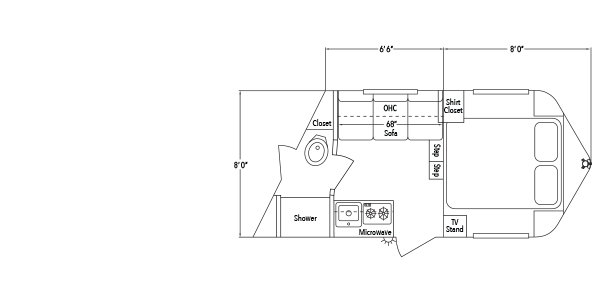
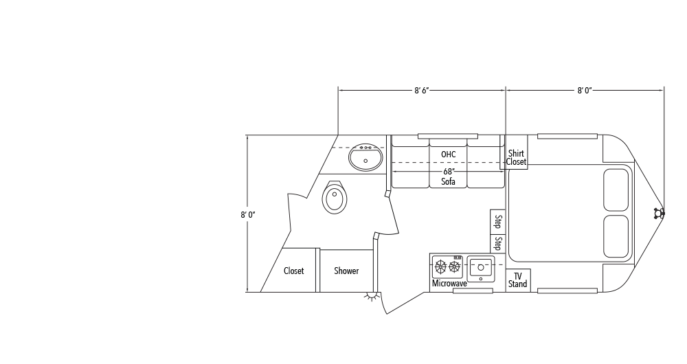
Sundowner Living Quarter 8006 Trailer Floorplan
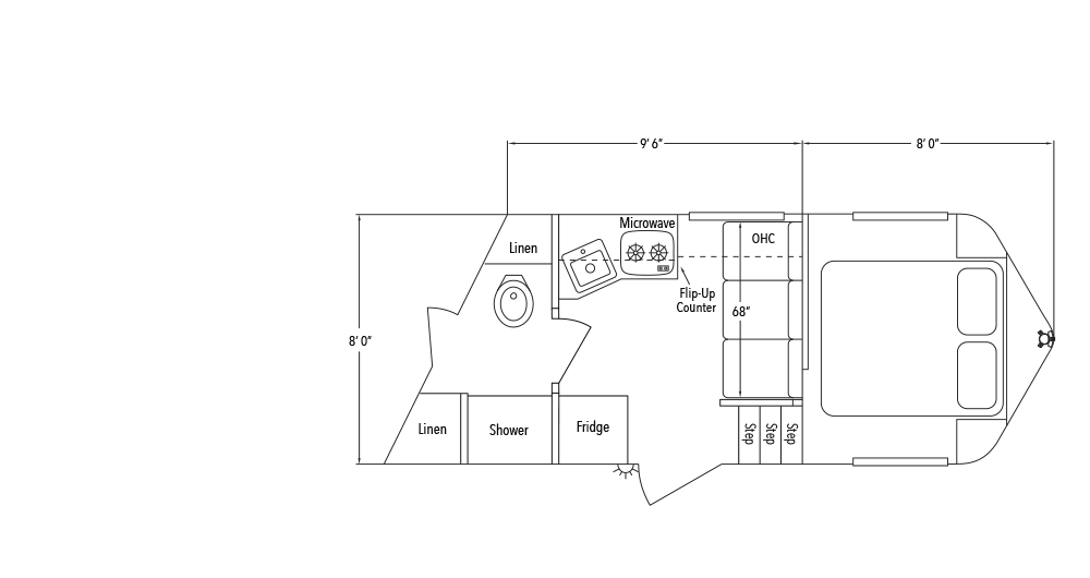
8006
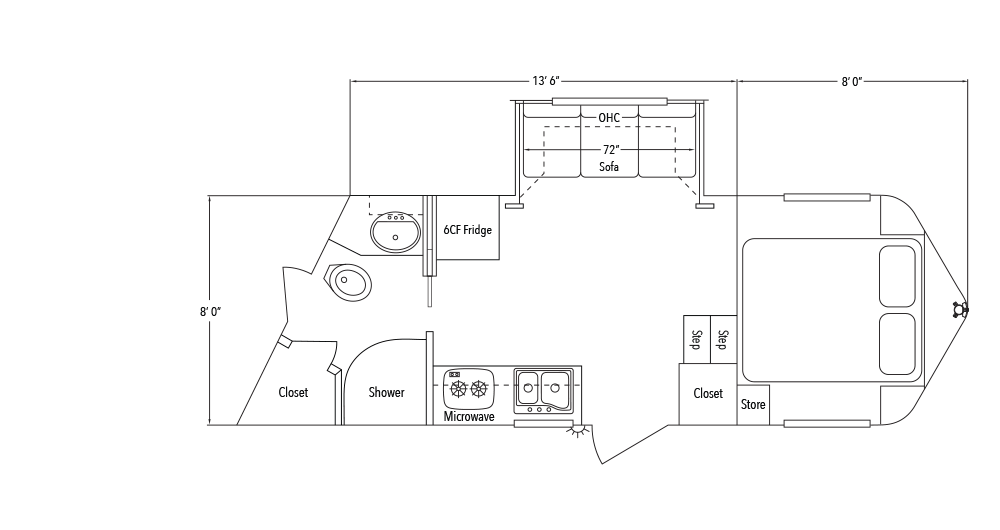
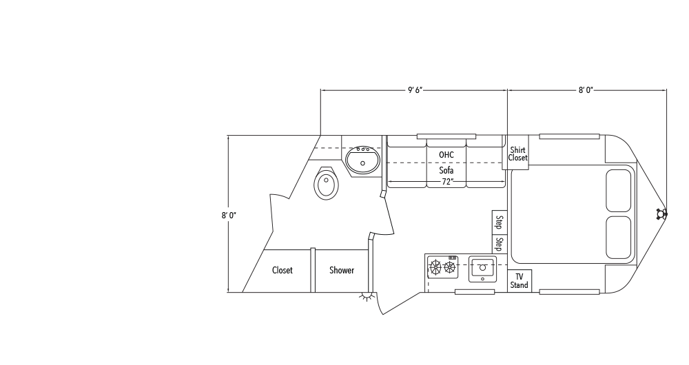
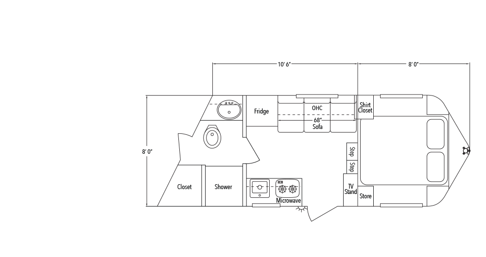
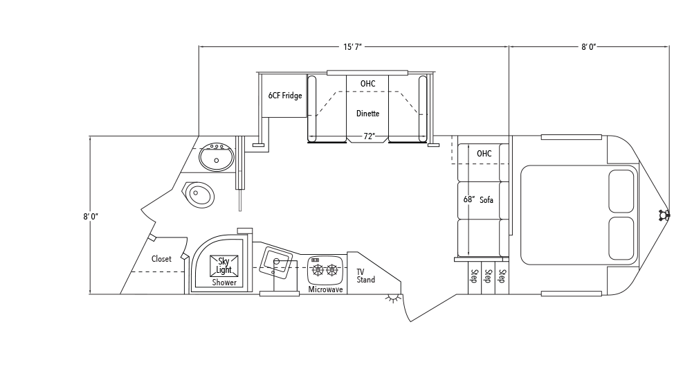
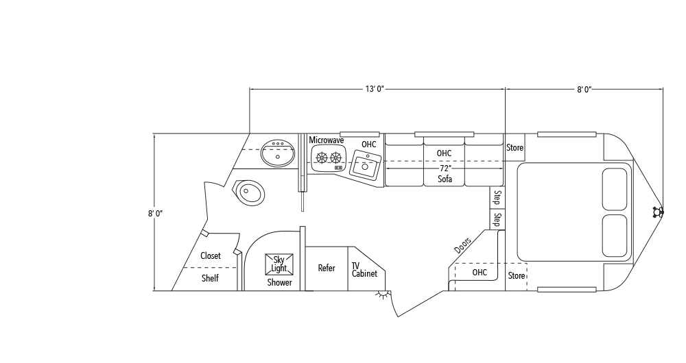
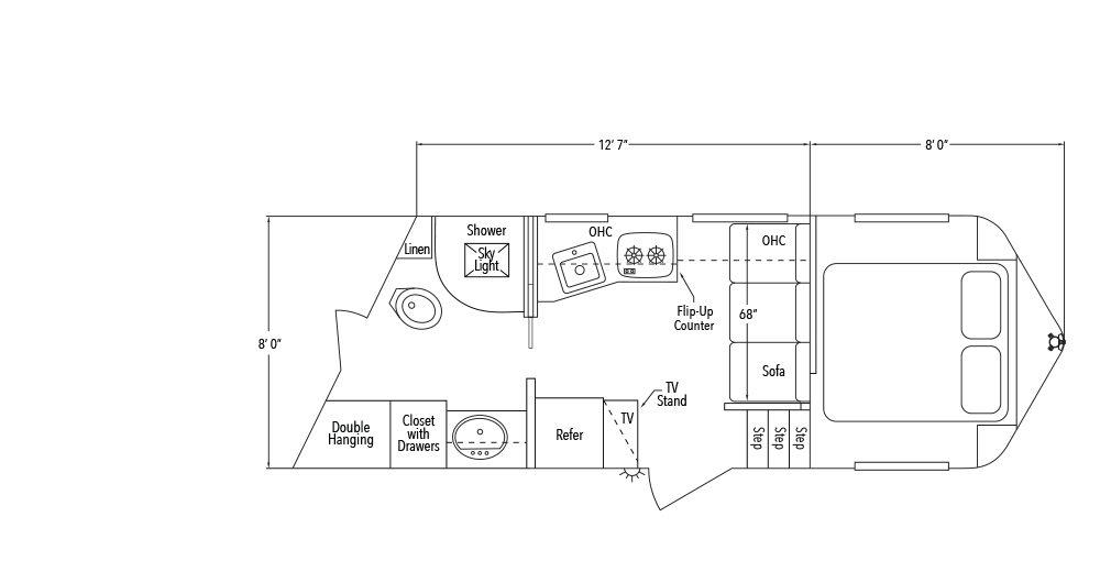
Sundowner Living Quarter 8007 Trailer Floorplan
8007
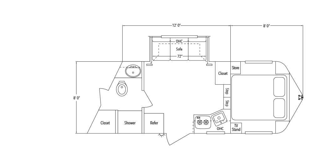
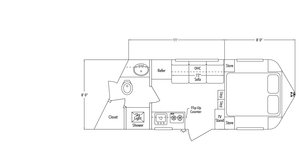
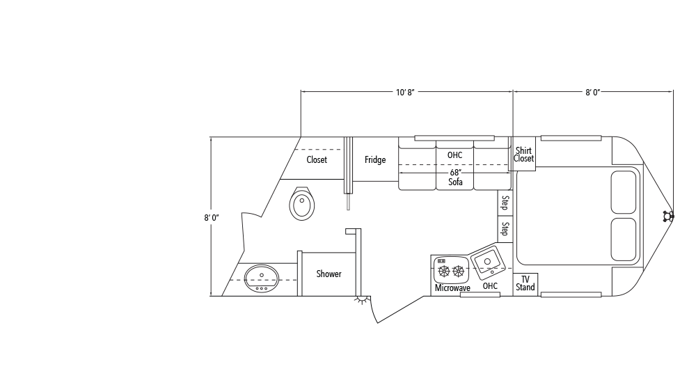
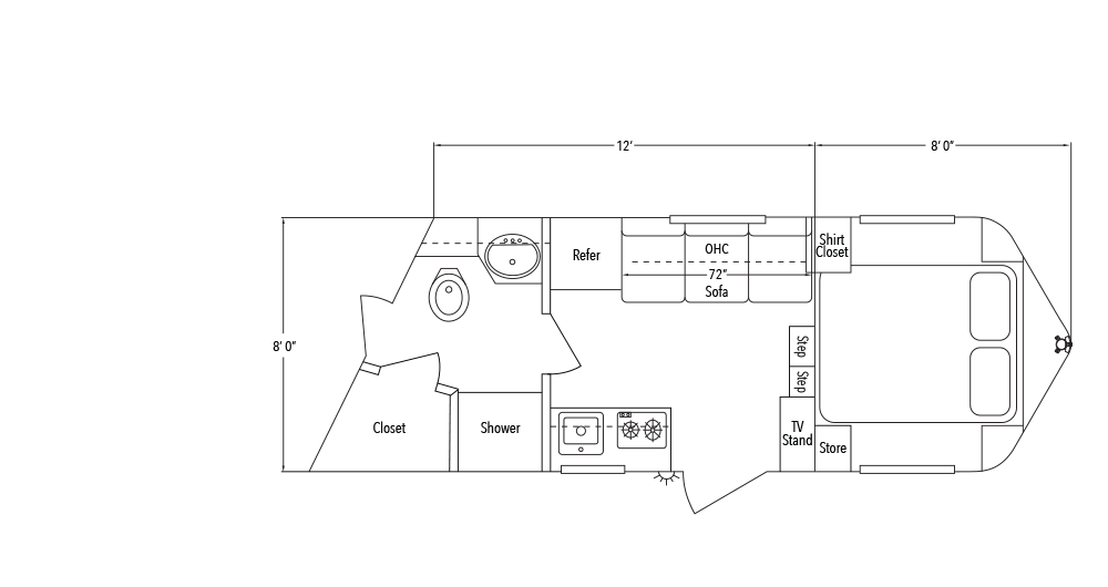
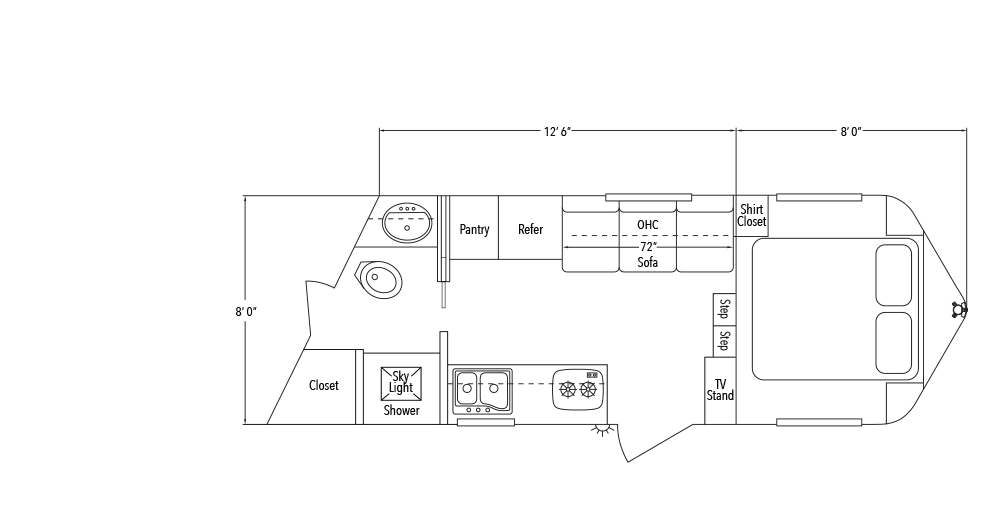
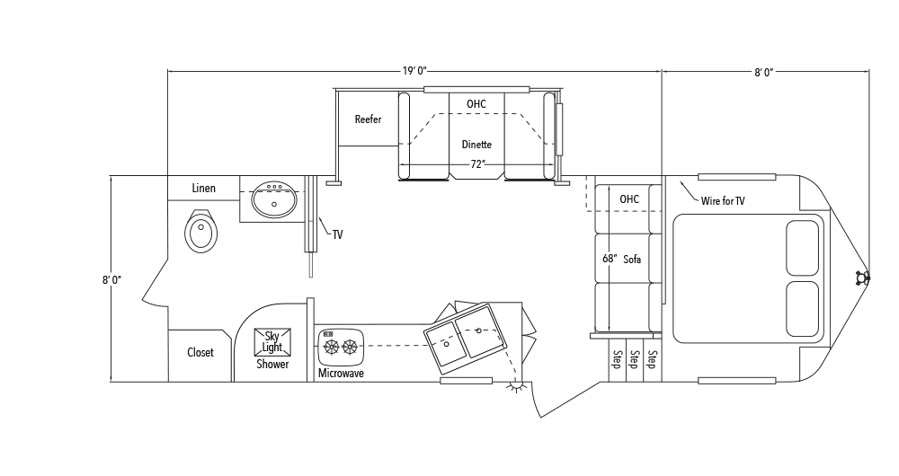
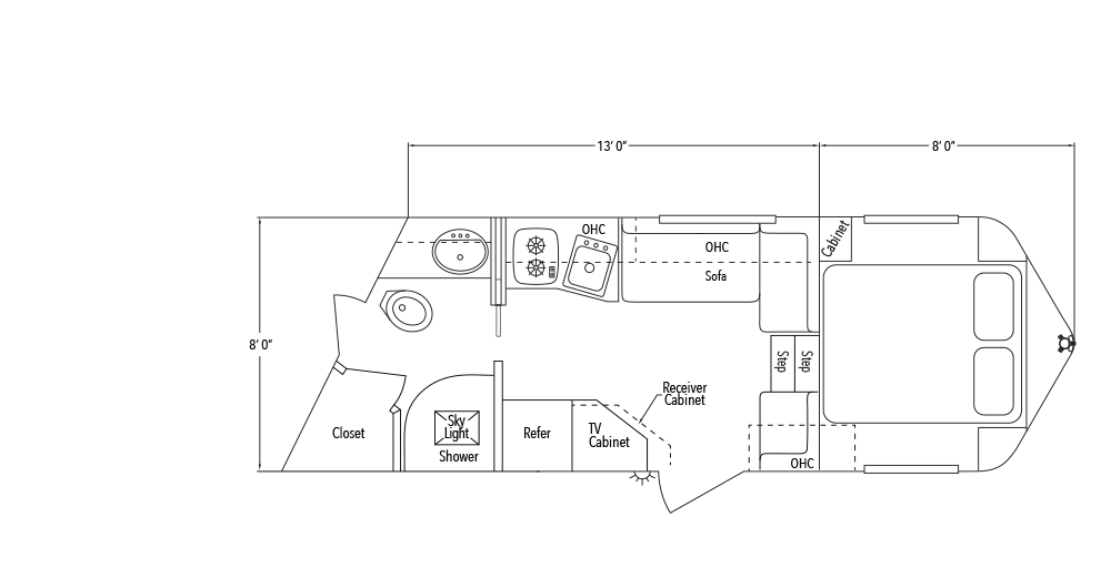
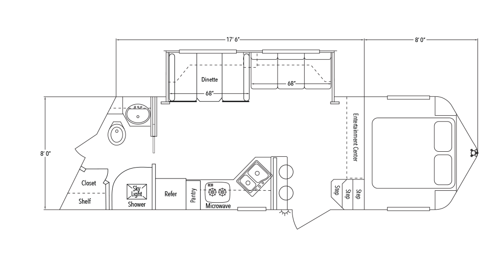
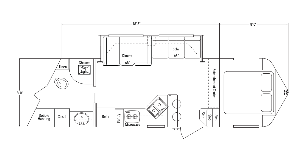
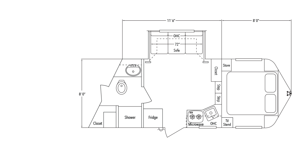
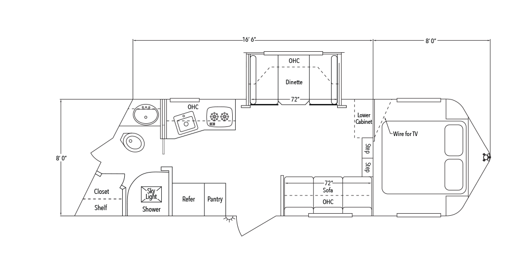
Sundowner Living Quarter 8008 Trailer Floorplan
8008
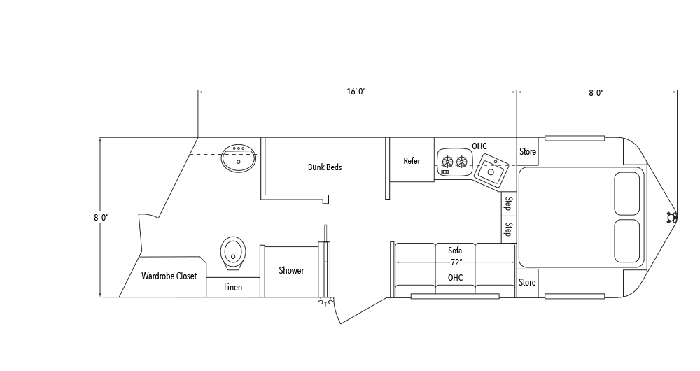
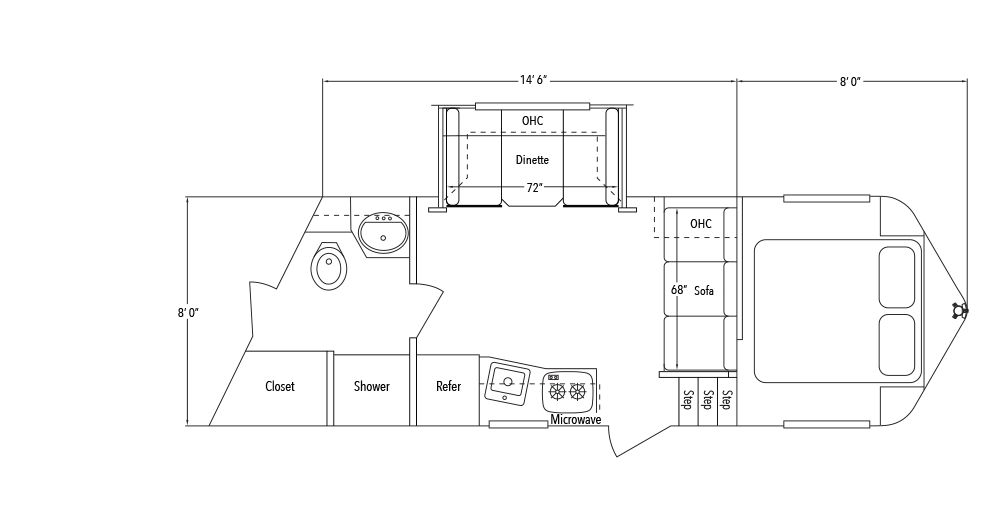
Sundowner Living Quarter 8009 A Trailer Floorplan
8009 A
Sundowner Living Quarter 8009 B Trailer Floorplan
8009 B
Sundowner Living Quarter 8009 ST Trailer Floorplan
8009 ST
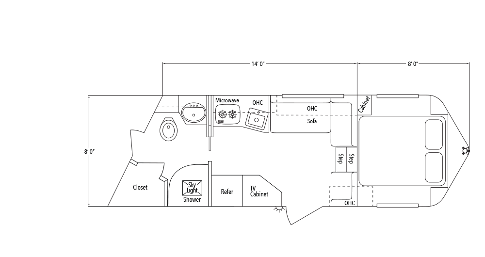
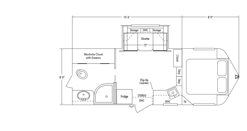
Sundowner Living Quarter 8010 A Trailer Floorplan
8010 A
Sundowner Living Quarter 8010 B Trailer Floorplan
8010 B
Sundowner Living Quarter 8010 C Trailer Floorplan
8010 C
Sundowner Living Quarter 8010 Straight Wall Trailer Floorplan
8010 ST
Sundowner Living Quarter 8011 A Trailer Floorplan
8011 A
Sundowner Living Quarter 8011 C Trailer Floorplan
8011 C
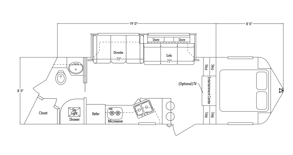
Sundowner Living Quarter 8011 D Trailer Floorplan
8011 D
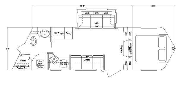
Sundowner Living Quarter 8011 Slide Out Trailer Floorplan
8011 GR Slide Out
Sundowner Living Quarter 8012 A Trailer Floorplan
8012 A
Sundowner Living Quarter 8012 B Trailer Floorplan
8012 B
Sundowner Living Quarter 8012 C Trailer Floorplan
8012 C
Sundowner Living Quarter 8012 A Slide Out Trailer Floorplan
8012 GR A Slide Out
Sundowner Living Quarter 8012 J Trailer Floorplan
8012 J
Sundowner Living Quarter 8013 A Trailer Floorplan
8013 A
Sundowner Living Quarter 8013 B Trailer Floorplan
8013 B
Sundowner Living Quarter 8013 A Slide Out Trailer Floorplan
8013 GR A Slide Out
Sundowner Living Quarter 8013 B Slide Out Trailer Floorplan
8013 GR B Slide Out
Sundowner Living Quarter 8013 Straight Wall Slide Out Trailer Floorplan
8013 GR ST Slide Out
Sundowner Living Quarter 8014 Trailer Floorplan
8014
Sundowner Living Quarter 8014 A Slide Out Trailer Floorplan
8014 GR A Slide Out
Sundowner Living Quarter 8014 B Slide Out Trailer Floorplan
8014 GR B Slide Out
Sundowner Living Quarter 8014 J Trailer Floorplan
8014 J
Sundowner Living Quarter 8015 Slide Out Trailer Floorplan
8015 GR Slide Out
Sundowner Living Quarter 8015 Straightwall Slide Out Trailer Floorplan
8015 GR ST Slide Out
Sundowner Living Quarter 8015 Slide Out Trailer Floorplan
8016 Bunk Beds
Sundowner Living Quarter 8016 A Slide Out Trailer Floorplan
8016 GR A Slide Out
Sundowner Living Quarter 8016 B Slide Out Trailer Floorplan
8016 GR B Slide Out
Sundowner Living Quarter 8016 D Slide Out Trailer Floorplan
8016 GR D Slide Out
Sundowner Living Quarter 8017 Slide Out Trailer Floorplan
8017 GR Slide Out
Sundowner Living Quarter 8018 A Slide Out Trailer Floorplan
8018 GR A Slide Out
Sundowner Living Quarter 8018 B Slide Out Trailer Floorplan
8018 GR B Slide Out
Sundowner Living Quarter 8018 D Slide Out Trailer Floorplan
8018 GR D Slide Out
Sundowner Living Quarter 8019 Slide Out Trailer Floorplan
8019 GR Slide Out
Sundowner Living Quarter 8019 Straight Wall Slide Out Trailer Floorplan
8019 GR ST Slide Out
Sundowner Living Quarter 8020 Slide Out Trailer Floorplan
8020 GR Slide Out

*All dimensions are approximate. Photos may show options. Due to constant product improvements, specifications, component parts, standard and optional equipment are subject to change without notice or obligation. See your dealer for warranty details.